令和7年8月末時点

昇降口
給食庫
生徒・地域交流スペース
ランチルーム
制作作品展示コーナー
調理・被服実習室
(1階廊下)
美術室
体育館
体育館(ステージ側)

小学生学びの場
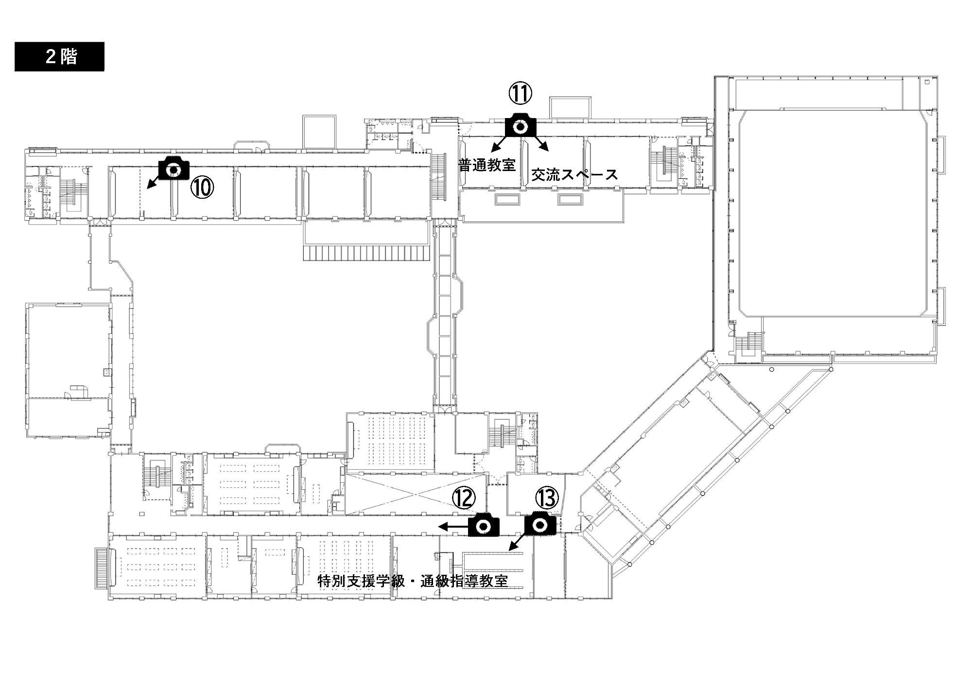
普通教室・交流スペース ※完成イメージ
普通教室
交流スペース
(2階廊下)
特別支援学級・通級指導教室

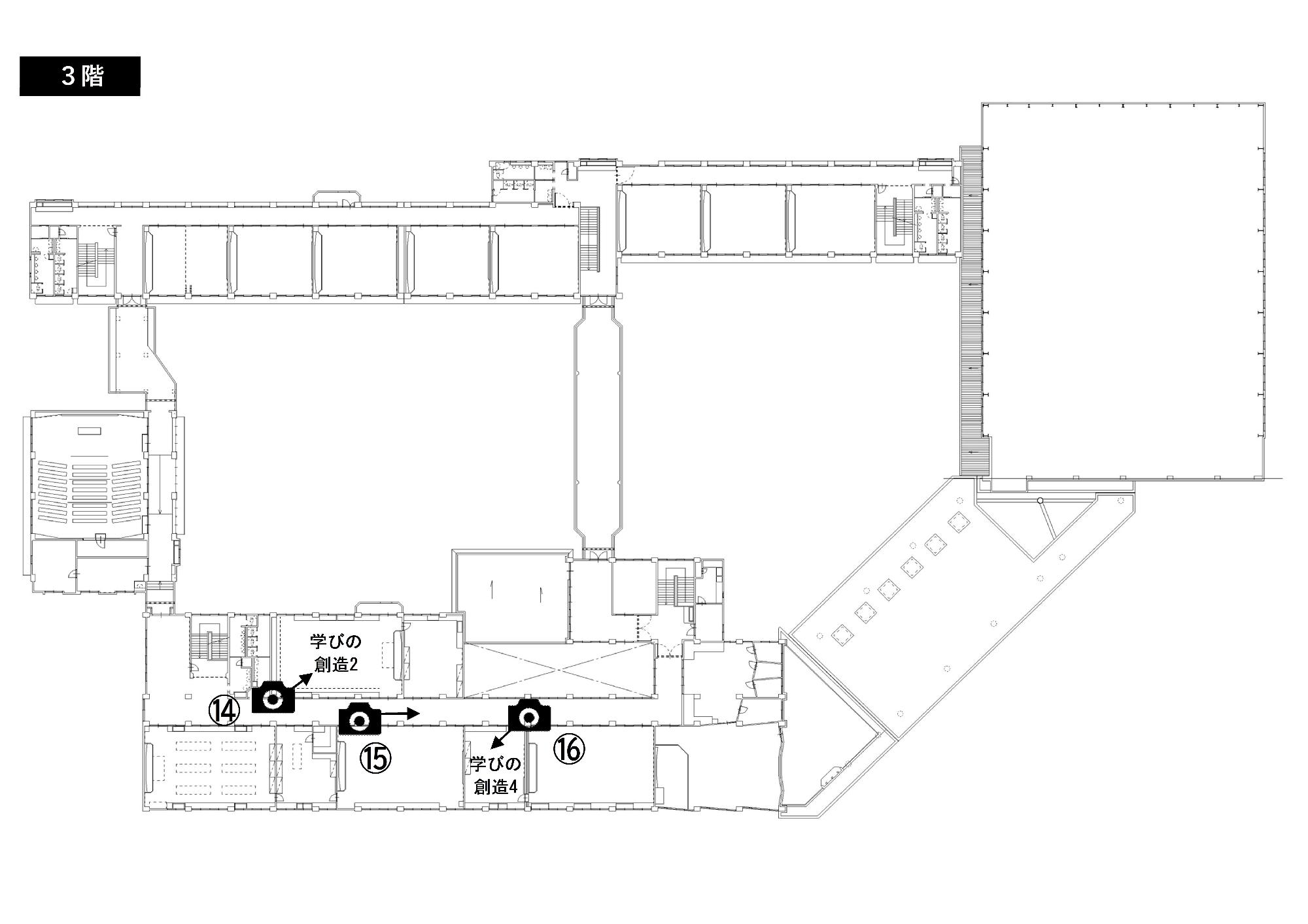
学びの創造
3階廊下
学びの創造
進捗状況は、令和7年8月末時点で【62%】となっています。
この記事に関するお問い合わせ先
教育委員会 ひかり学園推進課 ひかり学園推進係
住所:〒743-0011 光市光井九丁目18番3号
電話番号:0833-48-4051














更新日:2025年09月08日